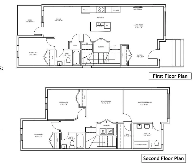
283 Munn Way, Leduc
1714 Sq.Ft. (RMS) | 4 Bedrooms | 3 Bathrooms
— Features Included —
Quartz countertops throughout the home
Durable vinyl flooring throughout the main level
Carpeted stairs and second floor throughout
Contemporary electric fireplace
MDF shelving throughout for added storage and organization
Spacious pantry for everyday convenience
Main floor bedroom
Main floor full bathroom
Three bedrooms upstairs
Upper-floor laundry for added convenience
Primary bedroom featuring:
Generous walk-in closet
4-piece ensuite
Side entrance for potential future legal suite
Garage
Garage option available* — inquire for details
Interested in this property?
For more information please contact our Sales Team at (780) 851-2077

